SP.Gov.br
sp.gov.br
Z6_MH1A1C4041KID067G5HAHSJB67
Z7_MH1A1C4041KID067G5HAHSJNB4

Z7_MH1A1C4041KID067G5HAHSJNR1
Topo e base

Condomínio Residencial Barão de Mauá

Processo e-ambiente: 031502/2020-54
Razão Social: COFAP – Companhia Fabricadora de Peças
Endereço: Rua Alexandre de Gusmão, 1395, Bairro Capuava, Santo André
Classificação: Área Contaminada Crítica
Etapa do GAC: Investigação detalhada, Elaboração do Plano de Intervenção, Monitoramento para Encerramento.

Z7_MH1A1C4041KID067G5HAHSJF04
Topo e base

IDENTIFICAÇÃO DO PROBLEMA

O Conjunto Residencial Barão de Mauá (CRBM) está localizado no bairro Parque São Vicente (Mauá/SP), próximo da divisa dos municípios de Mauá e Santo André, região que é caracterizada pela instalação de galpões e parques industriais, como também áreas comerciais e residenciais, conferindo um aspecto de ocupação mista. As vias de acesso ao Conjunto Residencial estão indicadas na Figuras 1 e 2.

Figura 1 – Localização do Condomínio Residencial Barão de Mauá

Figura 2 – Localização e vias de acesso do Condomínio Residencial Barão de Mauá.

O projeto original previa a construção de 72 blocos (8 pavimentos e 4 apartamentos por andar), sendo que somente parte destes foram efetivamente edificados, além de estacionamento para veículos, áreas de lazer (Playground, quadras), jardins, distribuídos por uma área total de 168.000m². O Condomínio está limitado à oeste pelo córrego Itrapuã e área pública da Prefeitura Municipal e a norte pela faixa de servidão da concessionária de energia elétrica (Eletropaulo). Uma faixa de servidão contendo oleoduto, pertencente a Petrobrás, corta todo o terreno no sentido N-S.

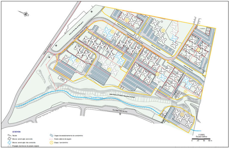
Compreende 9 condomínios residenciais constituídos por blocos construídos, habitados ou não finalizados, assim como blocos projetados que não chegaram a ser edificados, cuja distribuição encontra-se apontada na Figura 3.

Figura 3 – Situação dos blocos concluídos e não concluídos

Este condomínio foi construído em local preteritamente utilizado para pequenas atividades agrícolas sendo, posteriormente, a partir de meados da década de 70, utilizado para disposição significativa de material de aterro pela COFAP (volume estimado de 230.000m³), constituído basicamente por areia de fundição, bem como outros materiais de origem desconhecida, visto não ter havido controle de acesso ao terreno pelo proprietário do imóvel.

Foram identificados também outros materiais dispersos, denominados resíduos diferenciados, caracterizados da seguinte forma: borra plástica impregnada por óleo, resíduo friável pouco compacto e resíduo compacto resistente de aspecto vítreo.

A espessura do resíduo depositado varia de 10cm até 15m, e oscila de acordo com a topografia original do terreno, sendo as maiores espessuras observadas nas proximidades do talude atual com o córrego Itrapuã e a maior distribuição em área consiste naquela onde os resíduos possuem espessura entre 0,01 e 2,5m. O resíduo foi recoberto por camada de aterro (capeamento), composto principalmente por argila siltosa, eventualmente arenosa, com ocorrência de pedregulhos e entulho.

Na caracterização dos resíduos foi identificada a presença de chumbo (extrato lixiviado), outros metais (alumínio, antimônio, níquel, bário), índice de fenóis e, eventualmente, cobre e cromo (extrato solubilizado). Foram detectadas também concentrações de VOCs (cloreto de vinila, tricloroeteno, tetracloroeteno, 1,2,4 trimetilbenzeno, BTEX), SVOCs (fenol) e TPH.

A construção do Conjunto Residencial Barão de Mauá teve início em 1995, sendo que parte dos blocos foram posicionados sobre ou próximos do aterro industrial (10 blocos) e outros sobre solo natural (43 blocos), como indicado nas Figuras 4 e 5:

Figura 4 – Situação dos blocos em relação ao aterro industrial
Figura 5 – Situação dos blocos em relação ao aterro industrial

A área encontra-se contaminada por compostos orgânicos e inorgânicos, tendo sido avaliados os meios solo, águas subterrâneas e vapores do solo, além da presença de gás metano e fase livre de produto.

Z7_MH1A1C4041KID067G5HAHSJF43
Topo e base

Medidas Emergenciais

A Cetesb passou a atuar no caso em função de acidente ocorrido em abril de 2000, envolvendo combustão e explosão no interior de uma das casas de bombas subterrâneas onde estavam sendo executados serviços de manutenção, especificamente no Condomínio Residencial Bacia do Prata (bloco 4 da etapa 4), vitimando fatalmente um operário.

Na ocasião, a Cetesb aplicou penalidade de multa à empresa SQG Empreendimento e Construções Ltda., responsável pela construção dos edifícios, sendo exigidas a adoção de ações de monitoramento, identificação, caracterização e remediação do solo e águas subterrâneas. Na oportunidade foram definidas as seguintes exigências técnicas:

  • monitoramento de índices de explosividade;
  • ventilação forçada dos espaços fechados;
  • monitoramento da qualidade do ar na área do condomínio;
  • proibição do uso das águas subterrâneas;
  • monitoramento da qualidade da água de abastecimento público fornecida aos edifícios;
  • cobertura dos resíduos expostos com material inerte;
  • realização de investigação detalhada, para delimitação, caracterização e quantificação dos resíduos depositados e da contaminação do solo e das águas subterrâneas;
  • realização de avaliação de risco à saúde;
  • adequação dos playgrounds, posicionando-os sobre uma camada de argila compactada;
  • extração forçada de vapores e gases do subsolo, com monitoramento da eficiência do sistema de tratamento dos gases coletados;
  • apresentação de projeto destinado à remoção dos bolsões de materiais orgânicos geradores de gases e vapores;
  • implantação de medidas para remediação das plumas de contaminação das águas subterrâneas mapeadas no local;
  • estação de tratamento de gases;
  • sistema de extração de vapores;
  • poço de monitoramento;
  • área de recreação infantil protegida; e,
  • respiro na caixa de interfone.

Em função das ações adotadas, a situação emergencial foi controlada, bem como os riscos pela inalação do ar local. Os seguintes fatos favoreceram este quadro:

  • a maioria dos edifícios ocupados não se encontrava sobre a massa de resíduos;
  • o monitoramento de explosividade realizado em vários pontos do condomínio, indicaram que os níveis de explosividade caíram bastante na maioria dos pontos monitorados e os riscos permaneciam sob controle;
  • o monitoramento do sistema de extração de gases do subsolo, indicava que a área afetada por gases reduziu bastante no período de operação do sistema; e,
  • monitoramentos realizados na qualidade do ar atmosférico em ambientes externos e internos aos edifícios indicavam não haver concentrações de contaminantes que pudessem representar riscos por inalação de compostos voláteis.

Além das ações de caráter emergencial implementadas em resposta às exigências da Cetesb, as secretarias estadual e municipal de Saúde e o Ministério da Saúde desenvolveram ações destinadas à caracterização dos eventuais danos à saúde da população exposta aos contaminantes existentes no local.

Z7_MH1A1C4041KID067G5HAHSJFI6
Topo e base

Investigações ambientais e ações de gerenciamento (2000-2010)

Após as ações emergenciais, tiveram início as investigações ambientais da área (2000-2009) quando foi providenciado um diagnóstico ambiental do subsolo local a fim de se reconhecer a origem e extensão do problema existente. Dessa maneira, em maio/2000, a Construtora SQG, empresa responsável pelo empreendimento, contratou a CSD-GEOKLOCK para a condução destas atividades e devidas avaliações, as quais contemplaram:

  • Medições diárias de explosividade em estruturas subterrâneas (iniciado em 2000);
  • Ensaio Piloto de Extração de Vapores (realizado em 2000);
  • Investigação para Diagnóstico Ambiental (realizado entre 2000 e 2001);
  • Monitoramento da Qualidade do Ar (realizado em parceria com a UNICAMP e a ENVIRON em 2001, 2003 e 2009);
  • Modelo Numérico Tridimensional do Fluxo de Ar em Zona Não Saturada (realizado em 2001);
  • Elaboração de Estudos de Avaliação de Riscos à Saúde Humana (realizado em 2002);
  • Início da Operação do Sistema de Extração de Vapores com 14 poços (iniciado em 2002); e
  • Modelo Numérico Tridimensional de Fluxo de Águas Subterrâneas e Transporte de Solutos (realizado em 2002).

Em 2005 a Construtora SQG contratou a empresa de consultoria GEOINTEGRA, a fim de realizar serviços de investigação ambiental complementares para atender determinadas solicitações da Cetesb, os quais envolveram a execução de sondagens de reconhecimento, caracterização de amostras de resíduos, coletas de águas subterrâneas e superficiais do córrego Itrapuã.

Em 2009 a CSD-GEOKLOCK foi recontratada para realizar uma Atualização do Diagnóstico Ambiental do CRBM, levando em consideração todas as informações disponíveis, trabalhos estes conduzidos entre abril e outubro do referido ano, que contemplaram as seguintes atividades:

  • monitoramento in situ dos gases de aterro nas galerias de esgoto, galerias de águas pluviais, e demais pontos confinados do CRBM;
  • refinamento do mapeamento dos gases de aterro em subsuperfície (Soil Gas Survey);
  • sondagens de reconhecimento para caracterização do subsolo local e coleta de amostras de resíduos e solos + amostragem geotécnica;
  • ampliação da rede de monitoramento dos gases e vapores do ar do solo (PMG) e das águas subterrâneas (PM) + ensaios de bombeamento;
  • amostragem de ar ambiente nas áreas abertas e em alguns apartamentos pré-selecionados;
  • monitoramento dos gases de aterro no interior e nas adjacências dos blocos; e
  • modelagem matemática de transporte de contaminantes nas águas subterrâneas e de fluxo de gás em zona não saturada.

Os resultados obtidos foram compilados e apresentados no documento “Atualização do Diagnóstico Ambiental do Conjunto Residencial Barão de Mauá (CRBM) e Projeto Conceitual de Remediação”, emitido em abril/2010 (SP/P4895/R0043/2010). Em função da robusta base de dados adquirida ao longo desta investigação, foi possível estabelecer as áreas destinadas à intervenção visando a reabilitação futura, bem como as premissas dos projetos de recuperação ambiental.

De modo geral, os resultados obtidos indicaram que 11 dos 53 blocos construídos e habitados estavam localizados em áreas consideradas críticas e necessitavam do refinamento das investigações, em função das seguintes características identificadas:

  • Blocos localizados sobre e/ou parcialmente sobre a área de ocorrência do aterro de resíduos, com base nas sondagens de reconhecimento realizadas nas áreas abertas e/ou no entorno próximo aos blocos;
  • Blocos localizados próximos as áreas de ocorrência de resíduos diferenciados identificados nas áreas abertas (ex: borra plástica oleosa);
  • Blocos localizados próximos as áreas de ocorrência de fase residual de compostos orgânicos e/ou inorgânicos em níveis acima dos valores de referência nas amostras resíduos / solos;
  • Blocos localizados próximos a áreas de ocorrência de VOC em fase dissolvida, com base nos resultados analíticos das amostras de águas subterrâneas; e
  • Blocos localizados próximos a poços de monitoramento que indicaram a presença de gás metano (CH4) e/ou VOC acima dos níveis de referência.

Estes blocos passaram a ser denominados como 11 Blocos de Interesse, quais sejam: ETAPA 2 (Blocos 5, 6, 7 e 8), ETAPA 4 (Blocos 3 e 4) e ETAPA 6 (Blocos 1, 2, 3, 4 e 5).

Como complemento ao refinamento das investigações foram selecionadas algumas áreas localizadas sobre o aterro de resíduos, a saber:

  • ETAPA 2 – área de projeção do Bloco 9 e do Bloco 10 (não finalizado);
  • ETAPA 4 – área dos Blocos 7 e 8 (não finalizados);
  • ETAPA 5 – área dos Blocos 6 e 7 (não finalizados) e área de projeção do Bloco 8;
  • ETAPA 6 – área do Bloco 6 (não finalizado) e área de projeção dos Blocos 7 e 8;
  • ETAPA 7 – área de projeção dos Blocos 9, 10, 11 e 12;
  • ETAPA 9 – área dos Blocos 3 e 4 (habitados), área de projeção dos Blocos 5 e 6 e do Bloco 7 (não finalizado) e área do Escritório da Construtora SQG; e
  • Terreno da Prefeitura de Mauá (Canteiro de Obras do PERA-CRBM).

Nos demais condomínios (ETAPAS 1, 3 e 8), não foram verificadas necessidade de medidas de intervenção e/ou investigações complementares.

Em junho/2010, foi emitido pela CETESB o Parecer Técnico nº 107/TACA/10 no qual é feita uma avaliação deste relatório/resultados, sendo as principais considerações deste parecer relacionadas a apresentação de um plano de intervenção mais detalhado considerando todas as medidas de intervenção apontadas no relatório e uma revisão da análise de risco à saúde humana.

Z7_MH1A1C4041KID067G5HAHSJFE0
Topo e base

Investigações ambientais e ações de gerenciamento (2011-2020)

Em atendimento a solicitação da CETESB, foi elaborado um Plano de Recuperação Ambiental do Conjunto Residencial Barão de Mauá (PRAD-CRBM), de set/2011 o qual foi revisado de acordo com as recomendações contidas no Parecer Técnico 001/2011/CAAR, dando origem ao documento Plano Executivo de Recuperação Ambiental do Conjunto Residencial Barão de Mauá (PERA-CRBM) de fev/2012. A CETESB emitiu o Parecer Técnico 002/2012/CAAR aprovando as atividades propostas para a recuperação da área, sendo recomendados para algumas delas ajustes e/ou esclarecimentos adicionais anteriores à sua implantação.

A empresa de consultoria (GEOKLOCK) realizou as revisões e alterações do plano, as quais foram aceitas pela Cetesb em 22/04/2015, conforme manifestado no Parecer Técnico nº 006/15/CAAR, sendo as revisões e alterações do plano compiladas no documento “Atualização do Plano Executivo de Recuperação Ambiental (PERA-CRBM)”, emitido em maio/2015.

Visto que para a implantação de parte das obras de remediação seria necessário a obtenção de informações adicionais previamente à realização das obras, o PERA foi dividido em duas fases, denominadas FASE 1 e FASE 2, sendo que os dados obtidos ao longo da FASE 1 forneceriam subsídios para a implantação da FASE 2:

  • FASE 1: ações de investigação nas áreas abertas do CRBM e sob os blocos de interesse (por meio de sondagens inclinadas) e a implantação dos principais sistemas de remediação/mitigação; e
  • FASE 2: ações de investigação e implantação dos sistemas de remediação/mitigação no interior dos 44 apartamentos térreos dos 11 Blocos de interesse. Esta fase estava condicionada a construção de dois Blocos na área da ETAPA 9 para a realocação temporária dos moradores destes apartamentos.

Em 24/04/2015 a Cetesb emitiu a Autorização para Implantação do Plano de Intervenção tendo como base as considerações do Parecer Técnico n° 006/15/CAAR de 22/04/2015. Todo o processo de implantação do PERA teve início em outubro/2014, possibilitando a condução das atividades em 2015, já no âmbito da FASE 1, as quais contemplaram:

  • novas sondagens de reconhecimento amplamente distribuídas em toda extensão do CRBM, visando a caracterização dos diferentes estratos que compõem o subsolo local (capeamento, aterro de resíduos e solo natural);
  • sondagens de reconhecimento para delimitação das áreas de ocorrência de resíduos diferenciados, visando a elaboração dos planos de remoção, e posterior remoção deles (caso necessário) e destinação;
  • sondagens de reconhecimento inclinadas sob as faces dos 11 Blocos de Interesse, visando a caracterização dos diferentes estratos que compõem o subsolo imediato aos blocos;
  • coleta de amostras solos e/ou resíduos para caracterização geoquímica e identificação das principais áreas alvo de investigação (áreas abertas e sob os 11 Blocos de Interesse);
  • capeamento das áreas cujo aterro limpo indicou espessuras inferiores à 0,5 m;
  • ampliação da rede de monitoramento ambiental nas diferentes matrizes investigadas no CRBM (águas subterrâneas, ar do solo, contrapiso e ar ambiente das áreas abertas);
  • implantação de um programa de monitoramento in situ de gases de aterro (CH4, CO2 e O2), nas instalações e adjacências dos 11 Blocos de Interesse (ex: shafts, conduítes, fosso do elevador etc.) e em toda a rede de poços de gases e vapores do ar do solo, com periodicidade diária, semanal e mensal;
  • implantação de um programa de monitoramento analítico das diferentes matrizes investigadas no CRBM, com periodicidade trimestral e semestral;
  • instalação de um sistema de extração de vapores (SVE) visando a cobertura das áreas de maior criticidade para a presença de gás metano (CH4) e VOC no ar do solo, com startup da operação agosto/2016 de forma ininterrupta;
  • instalação de um sistema Air Sparging (AS) direcionado às áreas de ocorrências de VOC em fase dissolvida (águas subterrâneas), com startup da operação em outubro/2016 e paralisação em março/2019;
  • instalação de um sistema a caráter piloto para estabilização aeróbia in situ (ISAS) em local indicativo de metanogênese, com startup da operação em fevereiro/2017; e
  • sondagens de alta resolução com diferentes metodologias empregadas (MIP, HPT e OIP) para ampliação do conhecimento acerca do meio físico e do passivo ambiental identificado no site.

Os resultados das investigações conduzidas no âmbito da FASE 1 foram compilados e apresentados nos relatórios técnicos apresentados entre 2015 e 2017, quais sejam: “Delimitação de Área de Ocorrência de Resíduos Industriais para Remoção – Etapa 9 / SQG “(ago/2015), “Caracterização dos Solos das Valas e Áreas de Capeamento com Vistas a Destinação Final e Revisão das Áreas de Capeamento” (fev/2016), “Delimitação de Área de Ocorrência de Borra Plástica Oleosa para Remoção – Área 3 (Etapa 5)” (mar/2016), “Delimitação de Área de Ocorrência de Borra Plástica Oleosa para Remoção – Área 4 (Etapa 7)” (mar/2016), “Delimitação de Área de Ocorrência de Borra Plástica Oleosa para Remoção – Área 2 (Etapa 6)” (mar/2016), “Delimitação de Área de Ocorrência de Borra Plástica Oleosa para Remoção – Área 1 (Canteiro de Obras da EBP BRASIL)” (abr/2016), “Plano de Remoção para as Área 1, Área 3 e Área 4, do Conjunto Residencial Barão de Mauá (CRBM)” (abr/2016), “Plano de Remoção para a Área da SQG – Etapa 9 do Conjunto Residencial Barão de Mauá (CRBM)” (abr/2016), “Delimitação de Área de Ocorrência de Borra Oleosa e Resíduo Compacto – Áreas 5, 7, 8, 9 e 10 (Etapa 2)” (out/2016), “Complementação do Diagnóstico Ambiental e Revisão da Análise de Risco a Saúde Humana em Atendimento ao Plano Executivo de Recuperação Ambiental” (nov/2016), “Delimitação Complementar de Ocorrência de Borra Plástica Oleosa – Playground (Etapa 6)” (jun/2017), “Relatório de “As Built” das Obras de Implantação do Plano Executivo da Recuperação Ambiental do CRBM” (nov/2018), “Plano de Trabalho para a Remoção da Nova Área 2” (jun/2019) e “Plano de Trabalho para a Remoção da Área 10” (jul/2019).

Os dados obtidos ao longo das campanhas de monitoramentos in situ e analíticos nas diferentes matrizes investigadas no CBRM foram compilados e apresentados em relatórios técnicos periódicos, entre 2015 e 2020 (mensal, trimestral e semestral).

Os resultados obtidos ao longo das investigações e campanhas de monitoramento no âmbito da FASE 1, indicaram uma melhoria significativa do quadro ambiental em relação àquele identificado após o diagnóstico de 2009:

  • a área de ocorrência de aterro de resíduos foi completamente delimitada no entorno imediato e sob os 11 Blocos de Interesse, além das demais áreas em que foi solicitado um refinamento das investigações;
  • as áreas de ocorrência de resíduos diferenciados (borra plástica oleosa) foram completamente delimitadas e removidas (Áreas 1, 3 e 4), com exceção da Área 2 na ETAPA 6 e Área 10 na Etapa 2, cuja remoção foi reprogramada para 2022;
  • a grande maioria das amostras de resíduos / solos coletados no entorno imediato e sob os 11 Blocos de Interesse indicaram ausência de fase residual de compostos orgânicos e/ou inorgânicos em níveis acima dos valores de referência;
  • as campanhas de monitoramento das águas subterrâneas indicaram ausência de fase imiscível, com exceção da região das áreas abertas entre os Blocos 1, 2, 5 e 6 da ETAPA 6, onde foi verificada a presença de LNAPL;
  • o monitoramento analítico das águas subterrâneas indicou ausência de fase dissolvida de compostos orgânicos e/ou inorgânicos em níveis acima dos valores de referência, com exceção da região das áreas abertas entre os Blocos 1, 2, 5 e 6 da ETAPA 6; e
  • o startup e operação ininterrupta do Sistema de Extração de Vapores (SVE), em agosto/2016, reduziu em mais de 90% a área de ocorrência de metano e VOC no ar do solo nas áreas abertas e sob os 11 Blocos de Interesse.

Com base no extenso conhecimento adquirido desde o início da implantação do plano, alinhado ao ótimo desempenho do Sistema de Extração de Vapores (SVE) na mitigação das ocorrências de metano e VOC no ar do solo, foi acordado com a CETESB uma série de ações visando a revisão e redirecionamento das ações previstas para a FASE 2, denominada Etapa Preparativa para a Revisão do PERA FASE 2, sobretudo em relação à realocação temporária dos moradores dos 44 apartamentos térreos dos 11 Blocos de Interesse.

Em reunião realizada em 14/09/2017, foi apresentada à Cetesb a ferramenta denominada “Matriz de Decisão”, a qual visa fornecer subsídios para a tomada de decisão quanto a realocação (ou não) dos moradores destes apartamentos (prevista no Plano de Intervenção inicial). Conforme demonstrado nos resultados da FASE 1 no âmbito do PERA-CRBM e monitoramentos conduzidos após 12 meses de operação do Sistema de Extração de Vapores (SVE), houve uma melhora significativa do quadro ambiental nas áreas abertas do CRBM, inclusive em alguns dos 11 Blocos de Interesse, situação que indicaria não haver necessidade de realocação de moradores para investigações e/ou medidas de intervenção.

Foi definido em 29/09/2017, em conjunto com a Cetesb, o escopo das investigações complementares, sendo os resultados destes estudos reportados nos documentos: “Relatório de Serviços Executados – Investigação de Alta Resolução (Etapa 6)” (ago/2018), “Serviços Executados – Matriz de Decisão dos 11 Blocos de Interesse” (mai/2019) e “Integração dos Dados Ambientais e Alternativas de Remediação (Etapa 6)” (mai/2019), cujas conclusões indicavam estabilidade no quadro ambiental em 7 dos 11 Blocos de Interesse, não havendo a necessidade de investigações e/ou ações de intervenção adicionais neles, quais sejam: ETAPA 2 (Blocos 5, 7 e 8), ETAPA 4 (Blocos 3 e 4) e ETAPA 6 (Blocos 3 e 4). Através da Informação Técnica nº 015/2020/ICRI, a CETESB se manifestou da seguinte forma: “Em nossa avaliação, as referidas atividades foram realizadas a contento, determinando a melhora no quadro de alteração ambiental, devidamente observado ao longo dos monitoramentos executados, antes e após as intervenções realizadas. Com relação aos 7 blocos de interesse mencionados, a princípio, as condições atualmente presentes não indicam a necessidade de novas ações direcionadas a recuperação ambiental, sendo que para manter a estabilidade deste cenário, se faz necessária a continuidade da operação do sistema de extração de vapores.” Em função das ocorrências parciais de gás metano (CH4) e VOC nos poços inclinados (PMGI) posicionados sob o Bloco 6 (ETAPA 2) e Blocos 1, 2 e 5 (ETAPA 6), para estes blocos foi definido e alinhado com a Cetesb um conjunto de ações visando a mitigação de potenciais riscos associados à intrusão de gases e vapores (denominadas Ações Imediatas):

  • intensificação da geração de vácuo nos poços de extração (EVS) localizados no entorno destes 4 blocos;
  • instalação de poços de extração inclinados (EVSI) sob as faces dos blocos cujos poços de monitoramento inclinados (PMGI) indicaram presença parcial de gás metano (CH4) e VOC; e
  • como medida conservadora, a intensificação da geração de vácuo nos poços de extração (EVS) também foi realizada nos outros 7 blocos de interesse.

Os resultados preliminares destas ações foram compilados e apresentados no documento “Ações Imediatas e Delimitação das Ocorrências de Borra Plástica Oleosa na Etapa 6” (out/2019). Diante da robusta base de dados gerada durante as ações conduzidas no âmbito da FASE 1, somado aos resultados obtidos ao longo das investigações complementares, além dos resultados obtidos após a implantação das Ações Imediatas, a GEOKLOCK atualizou a Matriz de Decisão detalhando a evolução do quadro ambiental para cada um dos 11 Blocos de Interesse (“Matriz de Decisão Para Realocação dos Moradores dos 11 Blocos de Interesse” – out/2019), sendo confirmada o cenário de não necessidade de investigações e/ou ações de intervenção adicionais nos 7 blocos de interesse.

Para os outros 4 blocos (Bloco 6 da ETAPA 2 e Blocos 1, 2 e 5 da ETAPA 6), os resultados da Matriz de Decisão indicaram que ainda permanecem “sob avaliação”, sendo elaborado para estes blocos um modelo tridimensional de fluxo de ar (air flow) no subsolo, de modo a avaliar a distribuição do vácuo nas proximidades e no subsolo imediato as edificações, cujos resultados foram compilados no documento “Modelagem Tridimensional de Fluxo de Ar do Subsolo” (out/2020), que foi objeto de avaliação do Órgão Ambiental que emitiu a Informação técnica nº 015/ICRI/2020.

Z7_MH1A1C4041KID067G5HAHSJFL3
Topo e base

Ministério Público

Em 23/01/2019 a Cetesb emitiu o Parecer Técnico nº 001/19/CAAA, endereçado a Promotoria de Justiça de Mauá, em resposta ao Ofício nº 1764/2018 – 6ª P.J., que requisitava informações relativas à condição ambiental dos diversos condomínios que compõem o Conjunto Residencial Barão de Mauá (CRBM), e que consigne para quais deles havia a possibilidade de desembargo.

Segundo conclusões e recomendações constantes desta manifestação, não haveria necessidade de investigações adicionais e/ou medidas de intervenção em parte dos blocos e condomínios (Etapas) do CRBM, exceção feita aos 11 blocos de interesse situados sobre o aterro de resíduos e sobre a pluma original de metano, quais sejam: ETAPA 2 (Blocos 5, 6, 7 e 8), ETAPA 4 (Blocos 3 e 4) e ETAPA 6 (Blocos 1, 2, 3, 4 e 5).

Para estes blocos, foram realizadas uma série de ações e investigações complementares, devidamente alinhadas com a Cetesb.

Z7_MH1A1C4041KID067G5HAHSJFB6
Topo e base

Solicitação de Termos de Reabilitação

Conforme ATA de reunião realizada no dia 03/03/2021, foi solicitado pela Cetesb a emissão de relatórios individualizados solicitando o Termo de Reabilitação para Uso Declarado, para cada um dos condomínios que compõem o CRBM que apresentavam condições para tal (ausência ou risco controlado para os atuais moradores).

Tais documentos foram protocolados na Cetesb em jun/2021, e após a devida avaliação das informações apresentadas, o Setor de Avaliação de Áreas Contaminadas Industriais elaborou Informações Técnicas distintas para cada um dos condomínios, indicando aqueles que tinham possibilidade da emissão do Termo de Reabilitação para o uso declarado (Etapas 4, 5 e 7, respectivamente, Condomínio Residencial Bacia do Prata, Condomínio Residencial Rio Amazonas e Condomínio Residencial Império Brasileiro, conforme declarado nas Informações Técnicas nº 149/2022/ICRI, 596/2021/ICRI e 164/2022/ICRI), os que não estavam contaminados (Etapas 1 e 8, respectivamente, Condomínio Residencial Baronesa e Condomínio Residencial Cidade de Mauá, conforme declarado nas Informações Técnicas nº 364/2021/ICRI e 379/2021/ICRI) e os que ainda requeriam ações de investigação e/ou intervenção complementares (Etapas 2, 3, 6 e 9, respectivamente, Condomínio Residencial Ponta D’Areia, Condomínio Residencial Arroio Grande, Condomínio Residencial Província Cisplatina e Condomínio Residencial Irineu Evangelista de Souza, conforme declarado nas Informações Técnicas nº 364/2022/ICRI, 597/2021/ICRI e 081/2022/ICRI) Somente para a Etapa 6 (Condomínio Residencial Província Cisplatina) ainda não foi emitida manifestação visto que para este local ainda estão previstas muitas ações de gerenciamento ambiental a serem realizadas ainda em 2023, conforme previsto nos cronogramas de ação.

No processo digital Cetesb.031502/2020-54, constam as matrículas averbadas e os termos de reabilitação expedidos para a Etapa 4 (matrícula nº 35.161, Termo de Reabilitação nº 2021/2022), Etapa 5 (matrícula nº 35.160, Termo de Reabilitação nº 1976/2022) e Etapa 7 (matrícula nº 35.185, Termo de Reabilitação nº 2020/2022). Nestes documentos há indicação de que tais condomínios encontram-se reabilitados para o uso declarado (residencial), com medida de controle institucional de uso das águas subterrâneas e de escavação e/ou manuseio de solo, por tempo indeterminado, bem como a manutenção da operação do sistema de extração de vapores e do monitoramento proposto (Figura 6).

Figura 6 – subáreas não contaminadas (azul – Etapa 1 e Etapa 8), subáreas nas quais foram emitidos Termos de Reabilitação (verde – Etapa 4, Etapa 5 e Etapa 7), subáreas com necessidade de investigação complementar (amarelo – Etapa 2, Etapa 3, Etapa 6 e Etapa 9.
Complementary Content
${loading}